我们提供全方位的建筑与设计服务,助您实现理想空间:
我们的服务包括:
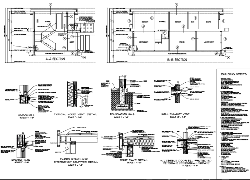
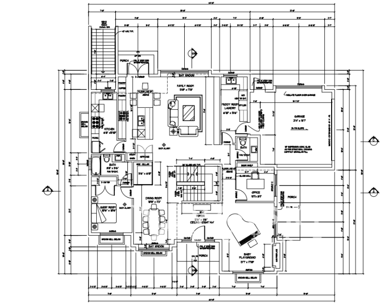
专业绘图:AutoCAD、Revit、Civil 3D、SketchUp
规划与设计:土地分区、房屋设计、加建与改造、后巷屋、厂房设计、Tenant Improvement
住宅设计:新建独立屋、单户加建、合法出租单位、地下室套间
商业与工业:商业空间改造(TI)、工业厂房设计、室内外翻新
申请与图纸:合法出租单位申请图纸、各类CAD施工细节图
选择我们的理由:
专业团队,熟悉本地规范与审批流程
提供实用性与美观兼顾的设计方案
从概念到施工,全程一站式支持
服务范围覆盖住宅、商业、工业多领域
拥有专业建筑师、结构工程师、机械工程师,地质工程师等多专业协作,提供多方位综合性服务
联系我们,为您的项目提供专业支持!
您只需一个电话,其他都交给我们!欢迎致电778-898-2582













]Cop]y(?R(ig[*-h?t©][19*)])9__9-201-8-*]v?]]_a-+n?sky].com