温哥华生意买卖 地产经纪 赵信德 Frank Chen 女神的衣橱 vanskywechat

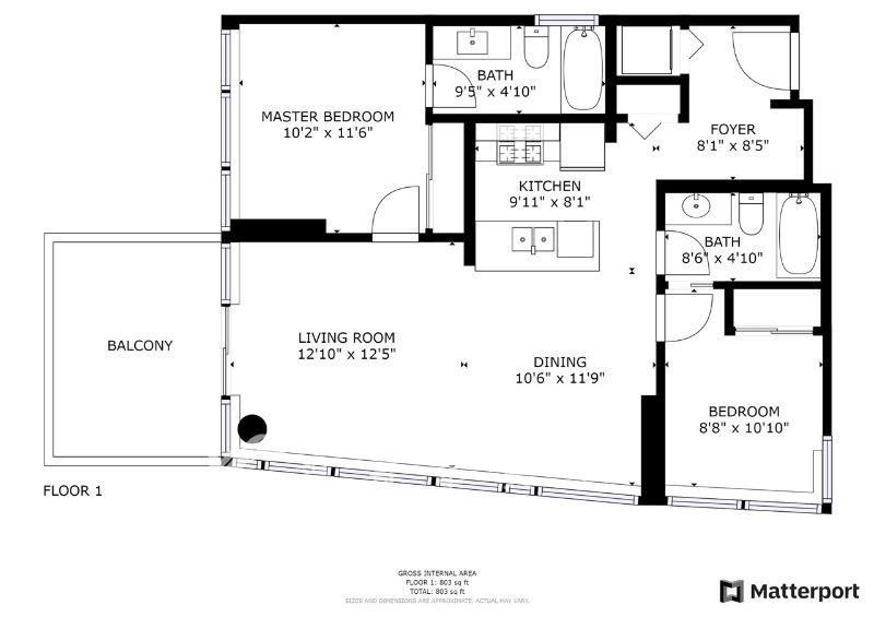
烈治文中心近天车站2房2浴高层水泥公寓

(Vansky Copyright)
更新时间: 2026-04-28, 19:11
联系人 联系人: cn16043513987
微信 微信   :
电话 电话   : 7787291386

[来电请说Vansky上看到]

地址 地址   : 8288 LANSDOWNE ROAD  

210125215614_1306 View.jpg
230720120955_Outlook.jpg
230720120955_1607FP.jpg
230720120940_1607 DL2.jpg
230720120939_1607KIT2.jpg
230720120940_1607DR.jpg
230720120939_1607MB.jpg
230720120939_1607MBSPA.jpg

C.opy[R_+_i[(_.g*ht©19]]99?]-2.*0?1(?.(-++8v?ansky)).)-com

出租住宅
住宅类型:公寓;
房间情况:2睡房;2浴室;1客厅;全功能厨房;1饭厅;
停车:车库;
设备设施:洗衣,干衣,一体炉具,冰箱,微波炉,地板;
租金包含:水,煤;
出租方式:整租;
是否独立出入:是;
租客条件:无烟,无宠;
语言偏好:普通话,广东话,英语;
可用时间:2026-06-01;
租金或价格:2850左右;
 
详情描述

烈治文中心近天车站2房2浴高层水泥公寓本公寓靠近 3号路 Lansdowne Rd天车站 大统华商圈。

高层单位坐北朝东南, 吃穿住行一应俱有,购物中心,中餐馆,便利店。交通极为便利极 ,采光充足,且户型极佳 主卧,侧卧分局两侧,互不打扰,分别通独立卫生间,让您体验双主卧户型。

大楼配备健身房,空中花园,台球桌等娱乐休闲设施 图中家具仅做参考,没有家具。

 

每月租金2850元,  6 - 12个月 起租,无烟无宠,欢迎预约看房及咨询 778-7291386 房东


联系我时请说明是在Vansky上看到的,谢谢!

 

防骗:请勿在未见面看房核实身份下,网上支付押金。
用图片内的文字描述看管房子,宠物免租金,都有诈骗嫌疑

Vansky Copyright

分享到微信: 分享到微信

cn16043513987

7787291386

电话

safari_pop_logo
 
App 下载